Casa d’epoca, panoramica, in vendita a Gabiano (AL)

  • €265.000
Gabiano
Vendita
Casa d’epoca, panoramica, in vendita a Gabiano (AL)
Gabiano
  • €265.000

Recensioni

COD. Immobile: 254
  • Case, Rustici e Casali
  • Tipologia
  • 329
  • mq
  • 8
  • Locali
  • 5
  • Camere
  • 3
  • Bagni

Descrizione

Nel cuore del Monferrato, vendesi casa d’epoca indipendente su tre lati con giardino, situata in una location dominante e suggestiva.

Un restauro magistrale ha preservato il fascino originario, valorizzando ogni dettaglio. Il giardino pianeggiante funge da belvedere naturale, offrendo uno dei panorami più autentici e spettacolari della zona.

Composizione:

p.t.: due cantine mq 82/ Androne carraio mq 23

p.t.: cucina, sala da pranzo, salotto, disimpegno, bagno  mq 112

p.1: cinque camere, due disimpegni, due bagni mq 217

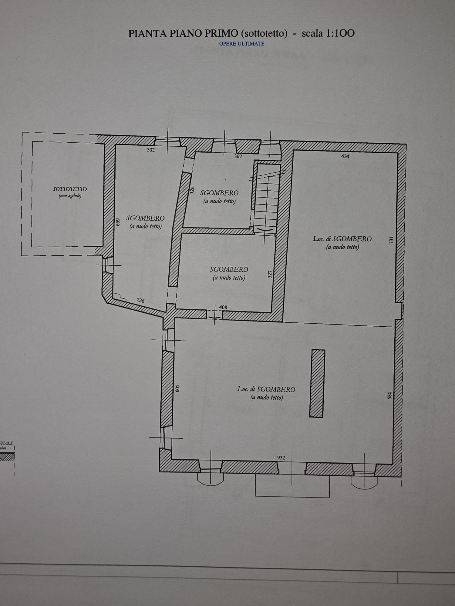
p.2: cinque locali di sgombero mq 194

Cortile/ giardino recintato mq 900 a corpo

Documenti

Pianta piano seminterrato
Pianta piano terra
Pianta piano primo
  • Località Gabiano
  • Provincia Alessandria

Dettagli

Aggiornato il Febbraio 19, 2026 at 10:56 am
  • COD. Immobile: 254
  • Prezzo: €265.000
  • Dimensioni proprietà: 329 mq
  • Superficie del Terreno: 900 mq
  • Camere: 5
  • Locali: 8
  • Bagni: 3
  • Tipologia: Case, Rustici e Casali
  • Stato: Vendita
  • Cantina: 2
  • Dimensione Cantina: 82 mq

Informazioni di contatto

Visualizza annunci

Richiedi informazioni su questo immobile

Immobili simili

esto di esclusione di responsabilità globalmente per tutti gli immobili, questo può essere impostato anche a livello di singolo immobile quando aggiungi/modifichi un immobile

Confronta Strutture

Confronta
Dimore e Dintorni
  • Dimore e Dintorni